Ficha
Parcela en venta en Coslada, Madrid
REF. 5415

138 m2
venta: 425.000 €
antes: 450.000 €
Descripción

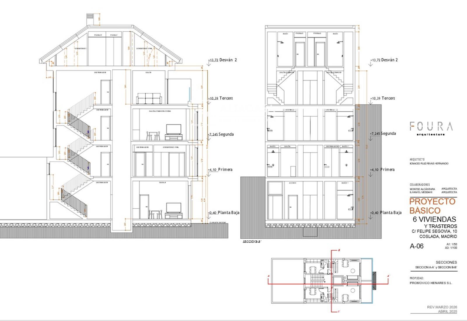
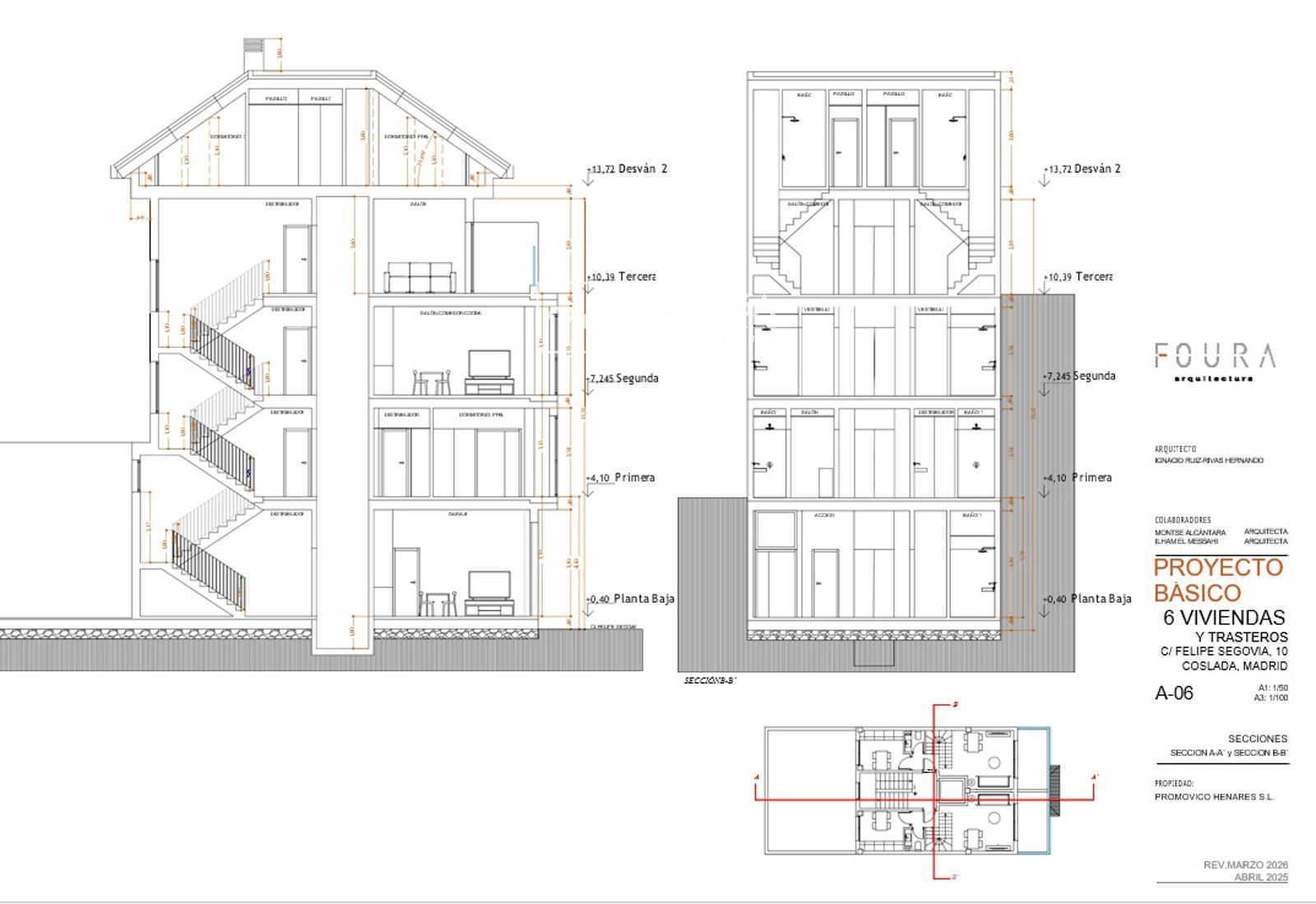
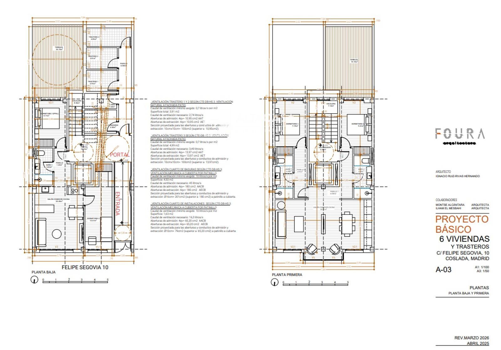
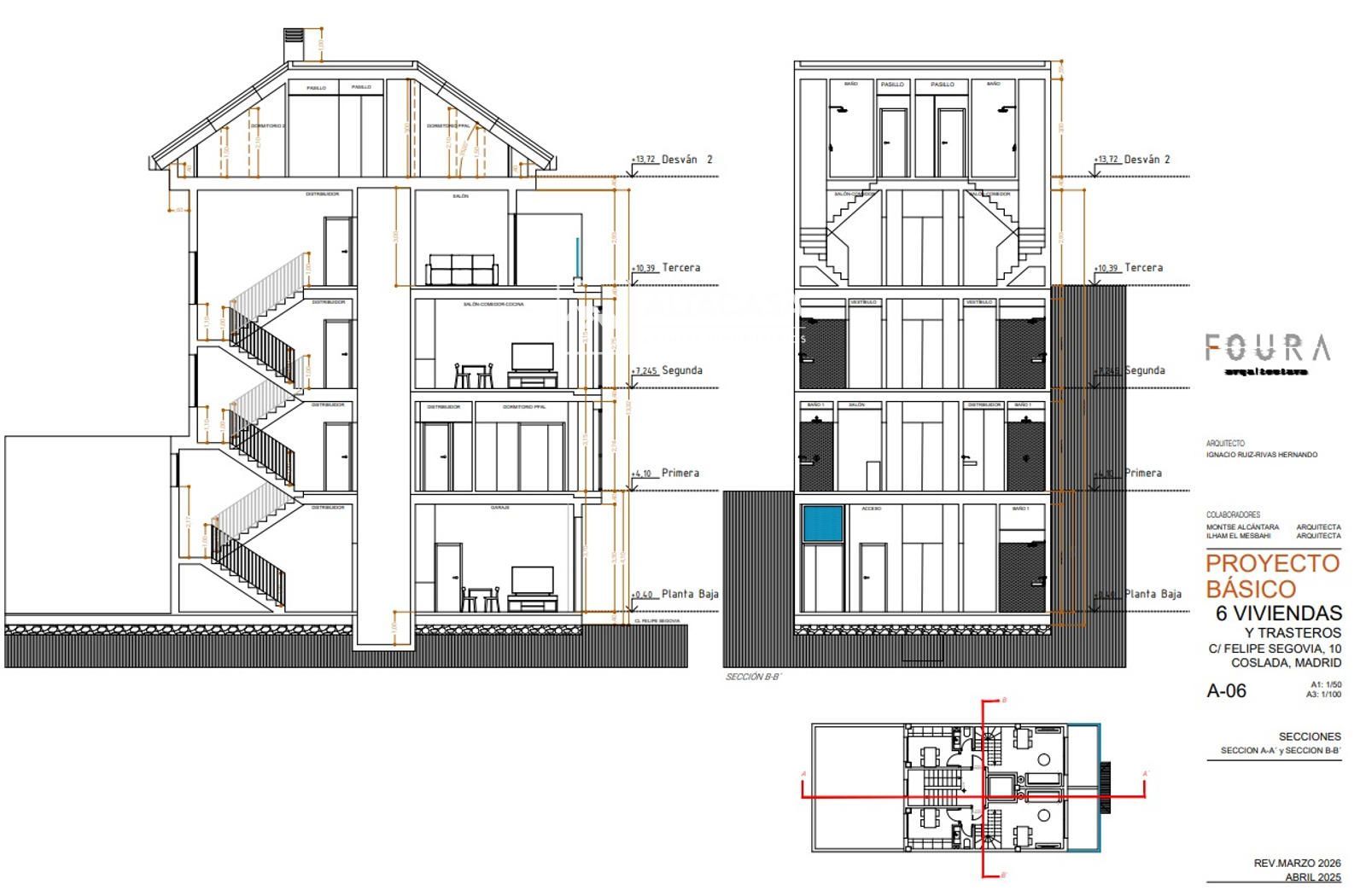
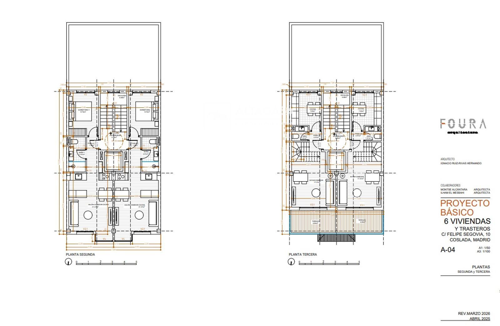
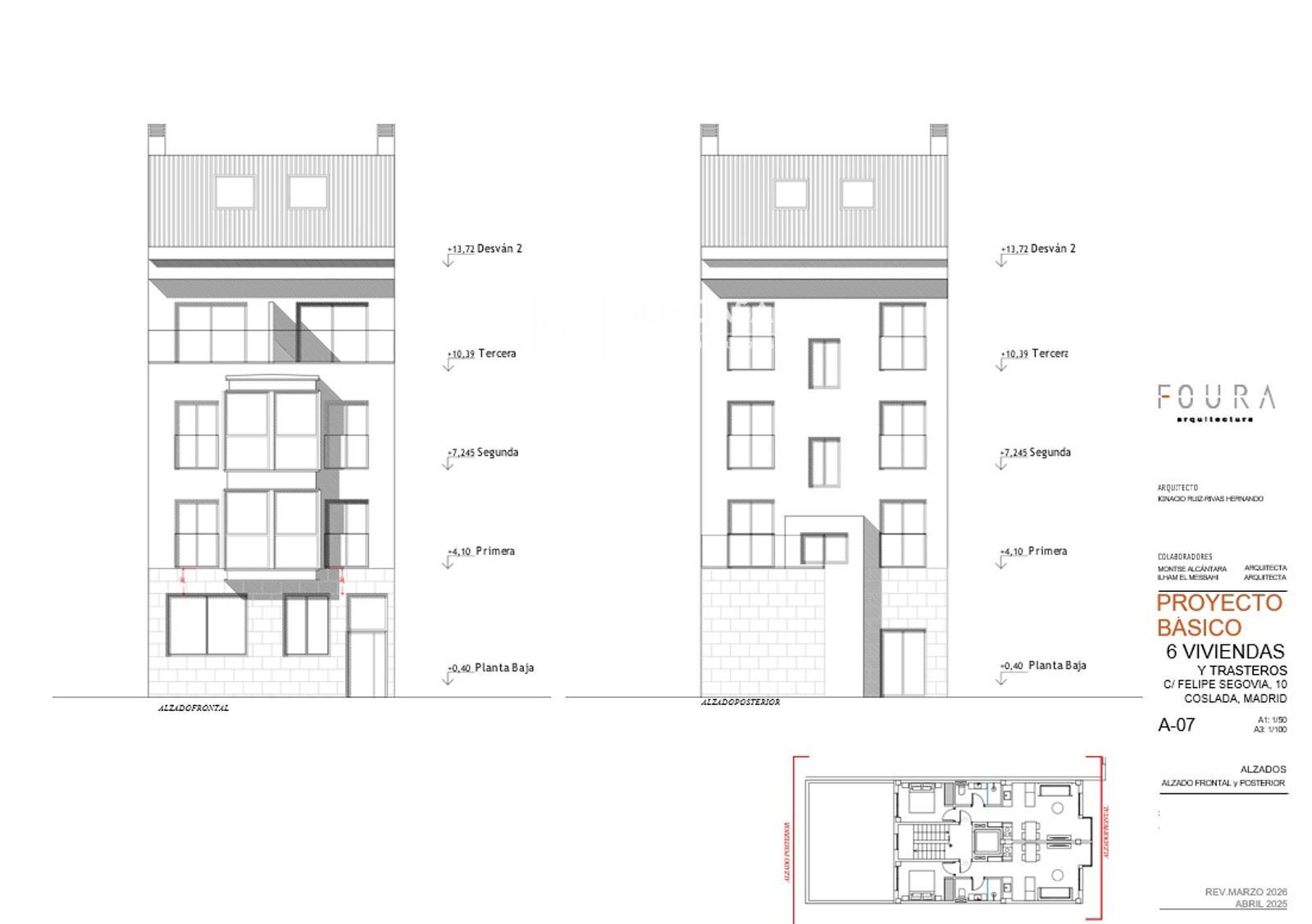
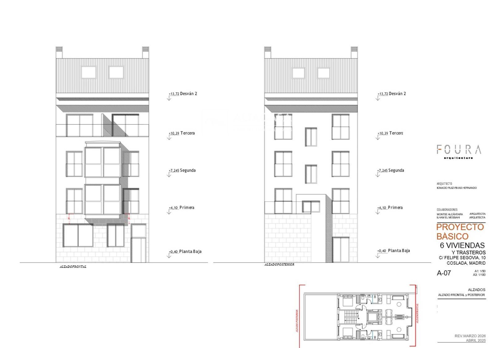
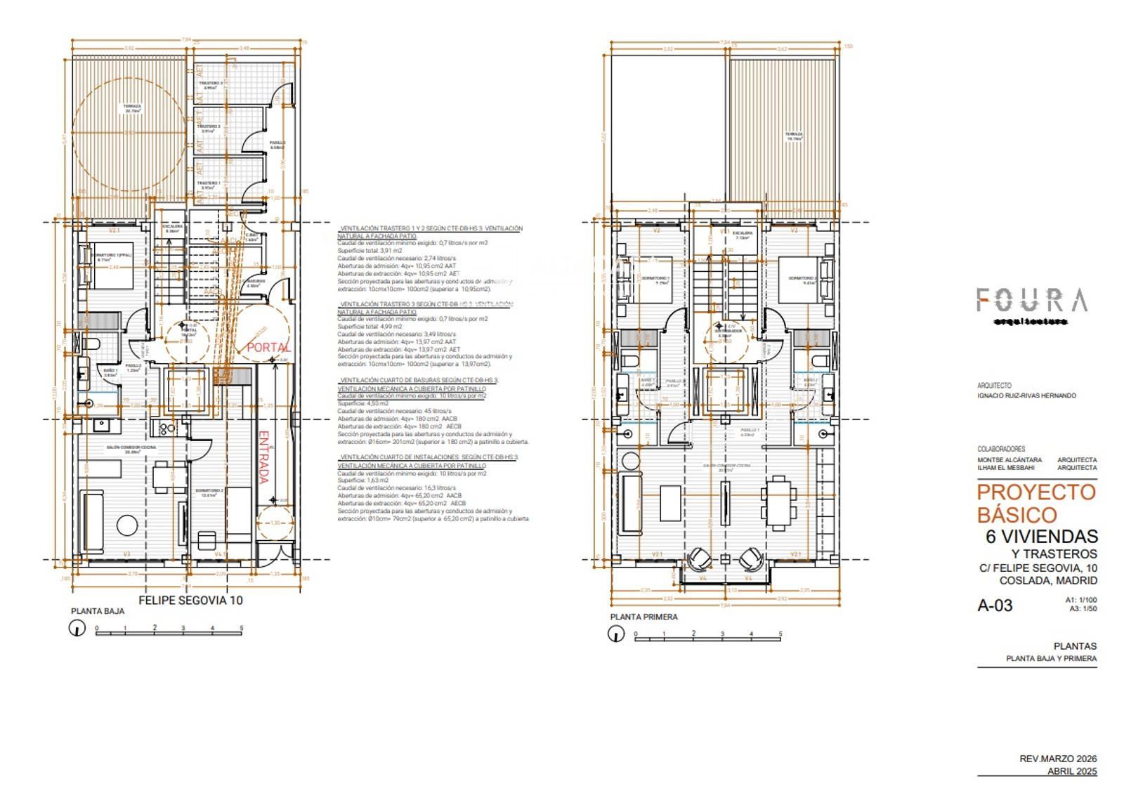
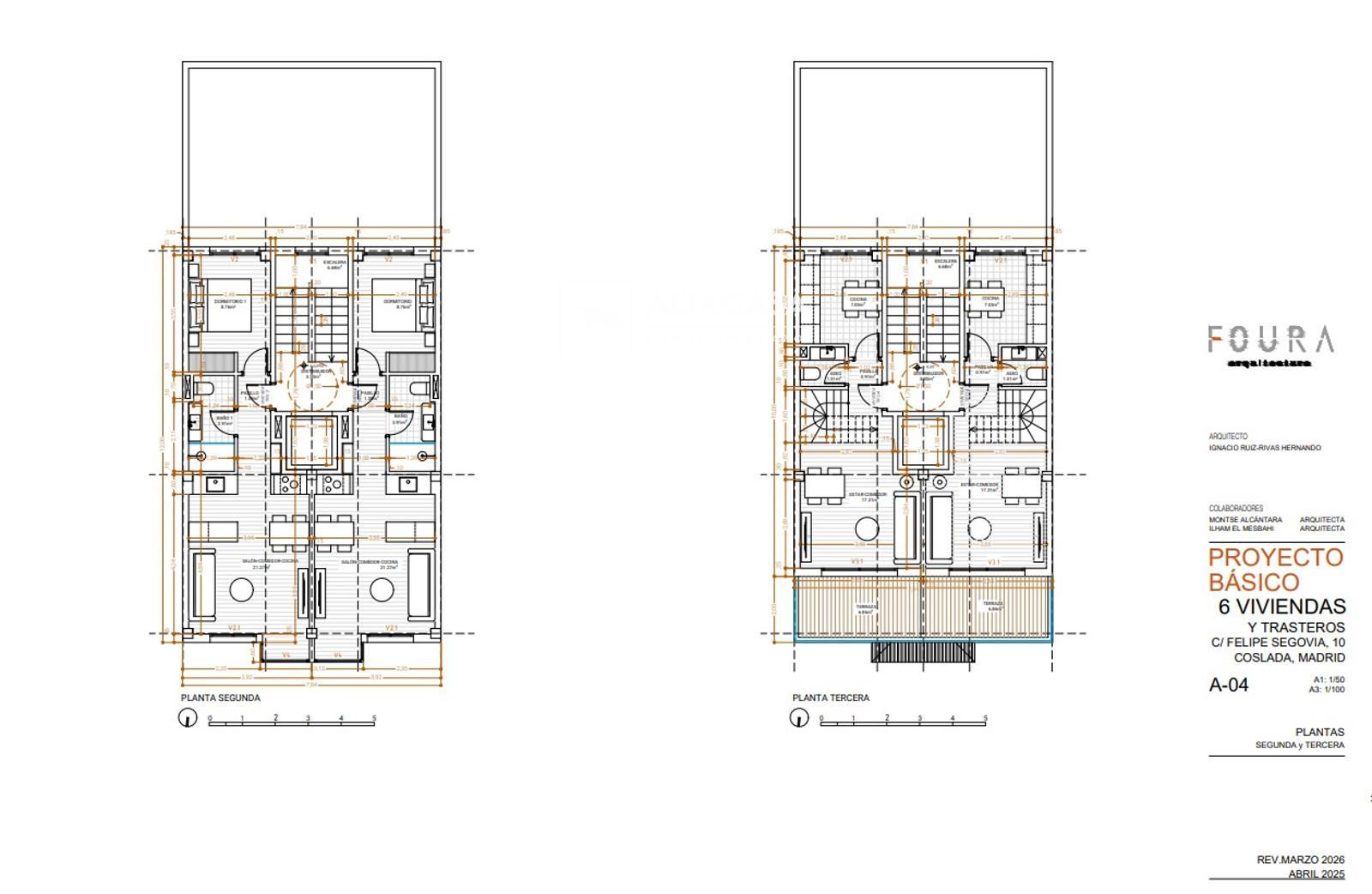
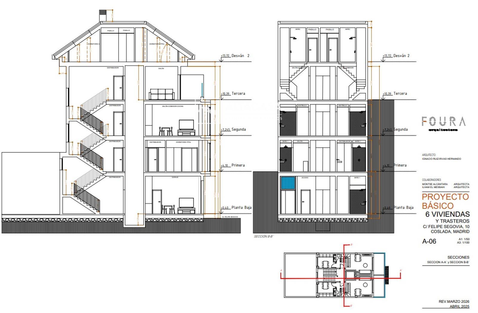
ALTACASA gestiona de forma exclusiva solar urbano de 138m2 situado en el centro de Coslada , una oportunidad perfecta para promotores e inversores gracias a que cuenta con proyecto de edificación ya aprobado por el Ayuntamiento para la construcción de 6 viviendas.


El inmueble se ofrece con una ventaja clave: el precio incluye tanto las tasas como el proyecto de edificación, lo que supone un importante ahorro de tiempo y costes y permite iniciar el desarrollo con mayor rapidez, minimizando trámites y gestiones previas.


Ideal para desarrollar una promoción de viviendas en un suelo con planificación avanzada, con la tranquilidad de disponer de la documentación técnica y administrativa ya contemplada en el precio.

Características
Precio Venta 425.000 €
Construidos 138 m2
Precio/m² 3.080
Calificación Energética En trámite
Escalas de eficiencia



Contáctanos

Si deseas más información sobre esta propiedad, por favor, rellena el formulario.

 Sí, he leído y/o acepto las Condiciones de uso y la Política de privacidad
Galería